每套住宅均是由各种不同功能的房间组成的,这些不同功能的房间大致有主卧室、次卧室、客房、书房、儿童房、保姆房、健身房、客厅、家庭厅、餐厅、门斗或门厅、厨房、公共卫生间、主卧卫生间、储藏间、楼梯间、南阳台、北阳台等共约16种。每种房间的开间进深均有个合理尺寸,每种房间尺寸合理是套型设计达到适用、舒适或高舒适要求的基本保证。
一、主卧室
1.主卧室的最低开间中到中尺寸是3.6m(净3.3m),最低进深中到中尺寸是4.8m(净4.5m)。这是保证家具摆放和人的活动最低适用要求的尺寸(图1)。

2.主卧室的“舒适”开间中到中尺寸是3.9m(净3.6m),进深中到中尺寸是5.1m(净4.8m)。这时家具摆放和人的活动是比较方便舒适的(图2)。

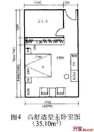
3.主卧室的“高舒适”开间中到中尺寸是4.2m(净3.9m),进深中到中尺寸是7.5m(净7.2m)。这时家具摆放和人的活动会更加方便舒适;不仅如此,到了这一级,主卧室就应该配有主卫生间和进入式衣帽间(图3)。或不设进入式衣帽间,以把卫生间做大,使洗浴更加舒适(图4)。


二、次卧室
次卧室为住户非主人使用的卧室,它的最低“适用”开间中到中尺寸是3.3m(净3.0m),进深中到中尺寸是4.5m(净4.2m),如图5。这里讲的是最低“适用”要求,因为小于这个尺寸就会给家具布置和人的活动带来不便,也就是说小于这个尺寸的房间就不应设计为卧室,而应设计为书房、儿童房、保姆房等功能的房间。若户建筑面积比较大或很大,次卧室也分别提高到上述主卧图1或图2的标准,这时次卧室也就分别达到了“舒适”或“高舒适”的要求了。

三、客房
客房为专供客人使用的卧室,一般拥有三间卧室以上的大户型方予设置。它的尺寸标准最低应与次卧室相同(图5)。当然,如果户型更大,它也可按最低“适用”主卧(图1)甚至“舒适”主卧(图2)设置,这时客房也就分别达到了“舒适”或“高舒适”的要求了。
四、儿童房
儿童房设计成开间3.0m、进深4.2m、面积12.60㎡,可满足家具摆放和人的活动要求,即“适用”要求(具体可参见图6)。当然,如果户型面积足够大,将儿童房按图5次卧尺寸(开间3.3m、进深4.5m、面积14.85㎡)或按图1主卧尺寸(开间3.6m、进深4.8m、面积17.28㎡)设计,则可使儿童房达到“舒适”或“高舒适”的要求。
同时,儿童是要长大成人的,按次卧或“适用”主卧设计儿童房,还可使儿童长大成人后不必更换房间,仍然室有适用舒适的房间供其使用。另外,设置儿童房还可使住宅套型设计更方便,即将受户面宽和进深限制不能将其设计为主卧、次卧、客房的空间设计为儿童房。

五、保姆房
户型建筑面积150㎡或以上的套型应设置保姆房,其尺寸可参照图6儿童房或更小。
六、书房
三室以上的户型宜设置书房。书房是供主人学习或家庭办公(工作)的房间。因无需摆放大床(2.2)和床头橱等家俱,所以其尺寸要求也不像卧室那样严格,具体可参见图7。它也像儿童房一样可使住宅套型设计更方便,即将受户面宽和户进深限制,不能将其设计为主卧、次卧、客房的空间设计为书房。当然,图7基本上是仅满足书房最低使用功能的“适用”要求,如果建筑面积足够大,也可按次卧图5、主卧图1、图2的开间进深尺寸设计书房,使书房达到“舒适”或“高舒适”的要求。这样还带来另一个好处,即书房可随时据需要改为卧室,增加了房间使用的灵活性。

七、健身房
根据户建筑面积的不同,健身房面积可大可小。小的可利用南阳台,如主卧阳台开间4.5m、进深1.8m、建筑面积8.10㎡;大者可如主卧图2开间3.9m、进深5.1m、建筑面积19.89㎡。小者放少些小点儿的健身器材,大者摆放多些大点儿的健身器材,这一点是很随意灵活的。健身房还可设在阁楼层内,也可设在别墅的半地下室内。但无论设在何处,一定要通风良好,否则就起不到健身作用了。
八、客厅
1.客厅的最低“适用”尺寸宜为开间3.9m,进深4.5m,建筑面积17.55㎡,如图8所示。请注意,这种尺寸的客厅,只能满足29英寸或32英寸彩电的观看距离要求,彩电尺寸再大就不行了,所以它仅是“适用”尺寸。
2.客厅的“舒适”尺寸要求,大致为开间4.5m,进深5.1m、建筑面积22.95㎡,这种尺寸大致能满足42英寸以下(不含42英寸)彩电的观看距离要求。
3.客厅的“高舒适”尺寸要求,大致为开间5.1m,进深6.6m,建筑面积33.66㎡,如图9所示。这种尺寸无论在开间方向或进深方向摆放电视,均可满足42英寸及以上彩电(背投、等离子、液晶等平板电视)的观看距离要求,所以,它是“高舒适”的客厅尺寸。


九、家庭厅
家庭厅是只供家人小憩聚谈交流的空间,只在户建筑面积很大,特别是在跃层户型的上层房间(卧室、儿童房、书房)之间设置。它宜设置在上层房间的中心,其尺寸无须很大,一般3.6=12.96㎡就可以了。
十、餐厅
餐厅是住户家人或家人与亲友进餐的房间。它的最小“适用”尺寸是开间3.3m、进深4.5m、建筑面积14.85㎡,如图10a所示。由图可见,摆放一八人餐桌和八把餐椅,这已是最小“适用”尺寸了,也就是说,餐厅的开间尺寸最小是3.3m,再小就不能用作餐厅了。
餐厅的“舒适”或“高舒适”开间进深尺寸可按3.6或3.9设计,详见图10b。“舒适”型可改放十人餐桌;也可仍放八人餐桌,使空间宽畅些;“高舒适”型不仅可改放十人餐桌,还可将冰箱甚至吧台置于其中,所以就是“高舒适”的了。

十一、门斗或门厅
80㎡以上(不含80㎡)套型宜设置门斗,它是进入户内的过渡空间,装修时做上一个造型优美的大门套,称之为玄关。它的开间尺寸宜为1.5m以上,具体如图11所示。门厅是户建筑面积很大,比如160㎡以上时,方予设置的空间。

图12所示套型建筑面积达167㎡,四室三厅二卫,可以说是一个“高舒适”的户型。这里要说的是它不是二厅而是三厅,比多数户型多了一个面积达18㎡的门厅,是否浪费呢?从图中可见,门厅中集中了七个门之多,因此这个门厅不仅充分起到了过渡、缓冲作用,而且使其它每个房间均很规整,很舒适,因此它并不浪费。

图12高舒适型门厅图(18.48㎡)
十二、厨房
厨房是住宅非常重要的房间,它与套型舒适度关系极为密切。随着户建筑面积的增大,它的尺寸也随之加大。厨房的“适用”、“舒适”、“高舒适”尺寸大致如图13a、b、c所示。“高舒适“型厨房”对于时尚家庭,若用作西餐厨房,可兼作家人小餐厅。

十三、卫生间
卫生间分公共卫生间和主卧卫生间。主卧卫生间以接近方形为佳(便于洁具布置),尺寸可参照图3和图4或适当加大设置,这个尺寸摆放矩形或大三角形喷水按摩浴缸均够。公共卫生间以矩形为佳,因这样既可少占面宽又可将洗漱与浴厕隔开,使之可供一人洗漱一人浴厕同时使用,增加它的使用功能,使户型更加“适用”或“舒适”,具体如图14所示。该图尺寸基本上可达到“舒适”标准,若要改成“适用”或“高舒适”标准,可将其开间、进深适当缩小或加大。

十四、储藏间
建筑面积130㎡及以上的套型应设置储藏间,以便住户存放杂物之用。它的“适用”尺寸大致如图15所示。将其开间进深各增加300或600可使其达到“舒适”或“高舒适”要求。

十五、楼梯间
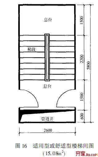
楼梯间的“适用”开间尺寸是2.6m,进深尺寸是5.8m,具体如图16所示。这个尺寸基本能满足人、家俱搬运、管道井设置等各种要求。梯段2.2m,即八个踏步0.275mx8=2.2m,每层上18步,若层高为2.8m,每个踏步高0.155m,这是很“适用”甚至较为“舒适”的尺寸。若要达到“高舒适”标准,可将开间增为2.7m,进深增加为6.0m,梯段长增为2.4m(踏步宽由0.275m增为0.3m)。
十六、南北阳台
南阳台若作健身房之用,其进深应达到1.8m以上,开间随主卧室(4.5m);若作花房和洗衣房,其进深宜为1.5m至1.8m,开间随次卧室(3.3m或3.6m)。北阳台也称生活阳台,一般设在厨房的北面,无论“适用”还是“舒适”或“高舒适”型套型均应设置。其进深以1.3m至1.5m为宜,开间随厨房(2.1m、2.4m、2.7m、3.0m)。
-----------我是华丽丽的分割线-----------